Czym właściwie jest rzut mieszkania? To nic innego jak dwuwymiarowy plan nieruchomości, widziany z góry, który przedstawia układ pomieszczeń, rozmieszczenie ścian, okien i drzwi. Samodzielne wykonanie takiego planu to niezwykle cenna umiejętność, przydatna zarówno podczas planowania remontu czy aranżacji wnętrz, jak i w procesie sprzedaży lub wynajmu nieruchomości. Pozwala ona na lepsze zrozumienie przestrzeni i efektywniejsze zarządzanie nią.
Stwórz czytelny rzut mieszkania krok po kroku od pomiarów po gotowy plan
- Rzuty mieszkań są kluczowe przy sprzedaży, wynajmie, planowaniu remontów i komunikacji z wykonawcami, znacząco podnosząc atrakcyjność oferty.
- Możesz go stworzyć odręcznie, korzystając z darmowych programów komputerowych (np. pCon.planner, Sweet Home 3D) lub aplikacji mobilnych z technologią AR (np. Magicplan).
- Kluczowe elementy rzutu to dokładne wymiary ścian, okien, drzwi oraz lokalizacja instalacji wodno-kanalizacyjnych i wentylacyjnych.
- Najczęściej stosowane skale to 1:50 lub 1:100; ważne jest precyzyjne wymiarowanie i stosowanie standardowych symboli architektonicznych.
- Unikaj typowych błędów, takich jak pomijanie grubości ścian, niedokładne wymiary czy przeładowanie planu zbędnymi detalami.

Dlaczego rzut mieszkania to podstawa sukcesu?
W dzisiejszych czasach, gdy rynek nieruchomości jest tak konkurencyjny, czytelny rzut mieszkania stał się absolutną podstawą sukcesu. Nie jest to już tylko dodatek, ale wręcz obowiązkowy element każdego ogłoszenia. Z mojego doświadczenia wiem, że oferty na portalach takich jak Otodom czy OLX, które zawierają dobrze przygotowany rzut, cieszą się znacznie większym zainteresowaniem. Potencjalni kupujący lub najemcy od razu widzą układ pomieszczeń, ich proporcje i możliwości aranżacyjne, co pozwala im szybko ocenić, czy nieruchomość spełnia ich oczekiwania. To oszczędność czasu dla obu stron.
Ale rzut to nie tylko narzędzie marketingowe. To także nieoceniona pomoc w planowaniu remontów i aranżacji wnętrz. Zanim kupimy meble czy zdecydujemy się na konkretne rozwiązania, możemy na planie sprawdzić, czy wszystko będzie pasować. Dzięki temu unikamy kosztownych błędów i niepotrzebnych poprawek, oszczędzając zarówno pieniądze, jak i nerwy. To naprawdę potężne narzędzie do wizualizacji.
Co więcej, rzut mieszkania to niezbędne narzędzie komunikacji z wykonawcami. Stolarzowi łatwiej jest zaprojektować szafę na wymiar, elektrykowi zaplanować rozmieszczenie gniazdek, a hydraulikowi umiejscowienie przyłączy, gdy mają przed sobą precyzyjny plan. Eliminuje to nieporozumienia i przyspiesza prace, co z mojego punktu widzenia jest kluczowe dla sprawnego przebiegu każdego projektu.

Przygotuj się do rysowania: pomiary i wstępny szkic
Zanim zabierzemy się za rysowanie, kluczowe jest zebranie dokładnych danych. Bez precyzyjnych pomiarów, żaden plan nie będzie użyteczny. Do tego zadania potrzebne będą podstawowe narzędzia: zwykła miarka zwijana oraz, jeśli to możliwe, dalmierz laserowy. Dalmierz znacznie przyspiesza pracę i zwiększa dokładność, zwłaszcza przy dłuższych ścianach. Pamiętaj, aby mierzyć zawsze od ściany do ściany, a także uwzględniać wszelkie wnęki, występy czy skosy. Precyzja to podstawa!
Oto lista kontrolna elementów, które należy zmierzyć w każdym pomieszczeniu:
- Długości wszystkich ścian (wewnętrznych i zewnętrznych).
- Wymiary i położenie okien (odległość od narożników, szerokość, wysokość parapetu).
- Wymiary i położenie drzwi (odległość od narożników, szerokość otworu, kierunek otwierania).
- Lokalizacja i wymiary wszelkich wnęk, kominów, słupów konstrukcyjnych.
- Rozmieszczenie przyłączy wodno-kanalizacyjnych (kuchnia, łazienka).
- Lokalizacja punktów elektrycznych (gniazdka, włączniki, punkty świetlne).
- Lokalizacja grzejników i punktów wentylacyjnych.
Po zebraniu wszystkich pomiarów warto wykonać szkic roboczy na zwykłym papierze. Nie musi być piękny ani idealnie proporcjonalny, ale powinien zawierać wszystkie zebrane dane. To będzie Twoja pierwsza, surowa wersja planu, która pomoże Ci uporządkować informacje i zorientować się w przestrzeni, zanim przeniesiesz ją na czystą kartkę lub do programu komputerowego. Ja zawsze zaczynam od takiego "brudnopisu", bo pozwala mi to wychwycić ewentualne braki w pomiarach.
Rzut odręczny: jak narysować plan mieszkania na papierze?
Rysowanie rzutu odręcznego to klasyczna metoda, która uczy podstaw i rozwija wyobraźnię przestrzenną. Kluczowe jest tu wybranie odpowiedniej skali. Najczęściej stosowane skale to 1:50 lub 1:100. Skala 1:50 oznacza, że 1 cm na rysunku odpowiada 50 cm w rzeczywistości, co jest idealne do szczegółowego planowania małych mieszkań lub pojedynczych pomieszczeń. Skala 1:100 (1 cm = 100 cm) sprawdzi się przy większych nieruchomościach, gdy chcemy przedstawić ogólny układ. Zawsze polecam zacząć od 1:50, jeśli zależy nam na detalach.
Gdy masz już skalę, zacznij od narysowania ścian. Ściany nośne zaznaczaj grubszą linią, aby odróżnić je od ścian działowych, które rysuj cieńszą linią. Pamiętaj o uwzględnieniu grubości ścian to częsty błąd początkujących! Standardowo ściany zewnętrzne mają około 25-40 cm grubości, a wewnętrzne działowe 8-12 cm. Przelicz to na swoją skalę i nanieś na plan.
Następnie nanieś na plan okna i drzwi, używając standardowych symboli architektonicznych. To sprawi, że Twój rzut będzie czytelny dla każdego:
- Drzwi: Zaznaczaj je linią i łukiem, który wskazuje kierunek otwierania. To kluczowe dla planowania przestrzeni wokół nich.
- Okna: Rysuj jako trzy równoległe linie, symbolizujące ramę i szybę.
- Grzejniki: Często oznaczane jako prostokąt z ukośnymi liniami wewnątrz.
- Umywalka, WC, prysznic: Mają swoje uproszczone symbole, które łatwo znaleźć w internecie.
Na koniec poprawnie nanieś wymiary. Podawaj długości wszystkich ścian, odległości między elementami (np. od narożnika do okna), a także całkowite wymiary pomieszczeń. Używaj linii wymiarowych z grotami i umieszczaj wartości liczbowe nad liniami. Pamiętaj, aby wszystkie wymiary były w centymetrach, co jest standardem w projektowaniu wnętrz.

Darmowe programy do rzutów: stwórz plan bez wydawania złotówki
Jeśli rysowanie odręczne wydaje Ci się zbyt czasochłonne lub chcesz uzyskać bardziej profesjonalny wygląd, na szczęście istnieje wiele darmowych programów, które Ci w tym pomogą. Dwa z moich ulubionych to pCon.planner i Sweet Home 3D. Oba oferują intuicyjny interfejs typu "przeciągnij i upuść", co sprawia, że tworzenie planów jest naprawdę proste, nawet dla osób bez doświadczenia. Posiadają też bogate biblioteki obiektów od ścian i okien, po meble i dekoracje co pozwala na szybkie wizualizowanie przestrzeni.
Dla tych, którzy potrzebują czegoś więcej niż tylko płaskiego rzutu, a chcą wejść w świat trójwymiarowego modelowania, polecam SketchUp Free. To potężne narzędzie, które pozwala na tworzenie bardziej zaawansowanych projektów 3D. Choć początkowo może wydawać się nieco bardziej skomplikowany, jego możliwości są ogromne, a liczne tutoriale online pomogą Ci szybko opanować podstawy.
Warto również zwrócić uwagę na programy działające bezpośrednio w przeglądarce, takie jak Floorplanner i Roomstyler. Są one idealne do szybkiego tworzenia planów i wizualizacji, bez konieczności instalowania oprogramowania. Ich prostota i dostępność z każdego miejsca z dostępem do internetu to ich największe atuty. Z moich obserwacji wynika, że są świetne do wstępnych koncepcji.
Oto krótkie porównanie tych darmowych narzędzi:
| Program | Główne cechy | Dla kogo? |
|---|---|---|
| pCon.planner | Intuicyjny interfejs, biblioteki obiektów | Początkujący, planowanie wnętrz |
| Sweet Home 3D | Łatwy w obsłudze, bogata biblioteka mebli | Początkujący, aranżacja wnętrz |
| SketchUp Free | Modelowanie 3D, bardziej zaawansowane | Użytkownicy potrzebujący wizualizacji 3D |
| Floorplanner | Projektowanie online, intuicyjny | Szybkie plany w przeglądarce |
| Roomstyler | Projektowanie online, wizualizacje | Aranżacja wnętrz online |
Rzut mieszkania smartfonem: szybkie plany z aplikacjami mobilnymi
W dobie smartfonów, technologia idzie nam z pomocą również przy tworzeniu rzutów. Aplikacje mobilne wykorzystujące technologię rozszerzonej rzeczywistości (AR), takie jak Magicplan, rewolucjonizują proces mierzenia i rysowania. Wystarczy uruchomić aplikację, skierować aparat smartfona na ściany pomieszczenia, a program automatycznie zeskanuje przestrzeń, mierząc odległości i tworząc wstępny plan. To niesamowicie szybkie i wygodne rozwiązanie, które pozwala na stworzenie rzutu w zaledwie kilka minut.
Oprócz Magicplan, warto zwrócić uwagę na inne popularne aplikacje, takie jak Planner 5D. Chociaż Planner 5D skupia się bardziej na aranżacji wnętrz w 3D, oferuje również funkcje tworzenia rzutów, a jego intuicyjny interfejs sprawia, że jest bardzo przyjemny w użyciu. Magicplan natomiast jest bardziej zorientowany na precyzyjne pomiary i tworzenie technicznych planów, co czyni go faworytem wśród profesjonalistów i amatorów potrzebujących dokładności.
Tworzenie rzutów na telefonie ma swoje wyraźne zalety i wady:
-
Zalety:
- Szybkość: Plany powstają w mgnieniu oka, bez konieczności ręcznych pomiarów.
- Wygoda: Wystarczy smartfon, bez dodatkowych narzędzi czy komputera.
- Dostępność: Możesz tworzyć plany w dowolnym miejscu i czasie.
-
Wady:
- Potencjalnie mniejsza precyzja: Dokładność może być niższa niż przy użyciu dalmierza laserowego czy profesjonalnych programów.
- Zależność od baterii telefonu: Długie skanowanie może szybko wyczerpać baterię.
- Krzywa uczenia się: Niektóre funkcje AR mogą wymagać chwili na opanowanie.
Unikaj błędów: najczęstsze pułapki przy rysowaniu rzutu
Nawet najlepsze narzędzia nie zagwarantują sukcesu, jeśli nie będziemy świadomi typowych pułapek. Jako osoba, która widziała już setki rzutów, mogę wskazać kilka najczęstszych błędów, które psują nawet najlepiej zapowiadający się plan:
-
Ignorowanie grubości ścian: To jeden z najczęstszych błędów. Rysowanie ścian jako pojedynczych linii zniekształca rzeczywiste proporcje pomieszczeń i uniemożliwia dokładne planowanie.
- Wskazówka: Zawsze rysuj ściany jako dwie równoległe linie, uwzględniając ich rzeczywistą grubość (np. 12 cm dla działowych, 25-40 cm dla nośnych).
-
Niedokładne lub nieczytelne wymiarowanie: Brak wymiarów, błędne wartości lub niejasne ich rozmieszczenie sprawiają, że rzut staje się bezużyteczny.
- Wskazówka: Każda ściana, okno i drzwi powinny mieć podane wymiary. Używaj czytelnej czcionki i umieszczaj wymiary tak, aby nie kolidowały z innymi elementami planu.
-
Pomijanie kluczowych instalacji (woda, prąd, wentylacja, grzejniki): Brak tych elementów może skutkować problemami podczas remontu i aranżacji.
- Wskazówka: Zawsze zaznaczaj lokalizację gniazdek, włączników, punktów wodno-kanalizacyjnych, wentylacji i grzejników. To kluczowe dla fachowców.
-
Przeładowanie planu nieistotnymi detalami: Zbyt wiele zbędnych informacji może sprawić, że rzut będzie chaotyczny i trudny do odczytania.
- Wskazówka: Skup się na kluczowych elementach konstrukcyjnych i instalacyjnych. Symboliczne umeblowanie jest w porządku, ale unikaj nadmiaru drobnych detali, które mogą zaciemnić obraz.
Gotowy rzut: jak go wykorzystać i co dodać?
Gdy Twój rzut jest już gotowy, czas pomyśleć, jak go najlepiej wykorzystać. Jednym z moich ulubionych sposobów na uatrakcyjnienie planu jest dodanie symbolicznego umeblowania. Nie musisz rysować każdego mebla z detalami wystarczą proste prostokąty o odpowiednich wymiarach, symbolizujące łóżko, stół, kanapę czy szafę. To niesamowicie pomaga w wizualizacji przestrzeni i pokazuje potencjalnym kupującym lub najemcom, jak można zaaranżować dane pomieszczenie. Dzięki temu łatwiej im wyobrazić sobie życie w tym miejscu.
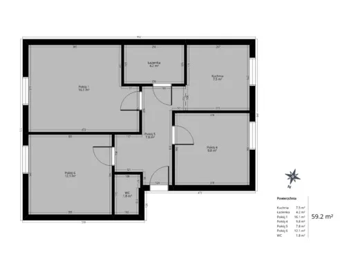
Kolejnym ważnym elementem jest obliczenie i poprawne oznaczenie metrażu poszczególnych pomieszczeń, a także całkowitej powierzchni użytkowej mieszkania. Wymiary podawaj w metrach kwadratowych (m²), umieszczając je wewnątrz każdego pomieszczenia. To podstawowa informacja, której szukają wszyscy zainteresowani nieruchomością i która jest niezbędna w dokumentacji.
Na koniec, gdy plan jest już kompletny i dopracowany, przygotuj go do eksportu. Najczęściej wykorzystywane formaty to PDF (dla zachowania jakości i łatwości druku) oraz JPG (do umieszczania na stronach internetowych i portalach ogłoszeniowych). Gotowy plik możesz wykorzystać na wiele sposobów: dołączyć do ogłoszenia o sprzedaży lub wynajmie na Otodom czy OLX, przesłać fachowcom (stolarzom, elektrykom, projektantom wnętrz) jako bazę do ich prac, a także zachować dla siebie jako pomoc przy planowaniu przyszłych zmian w mieszkaniu. Pamiętaj, że dobrze przygotowany rzut to inwestycja, która zawsze się opłaca!